贵安新天地贵雅苑120m² 日式风格
2019-10-31 11:43:39 查看人数 961
案例面积:120㎡
案例户型:三居室
装修造价:约25万
案例风格:日式
业主夫妻两是一个对60多岁的退休老人,这套房子是给他们后期休闲使用的,整体风格喜欢原木色的日式风格。把厨房移到入户花园位置,做开放式的,让空间视觉更大。
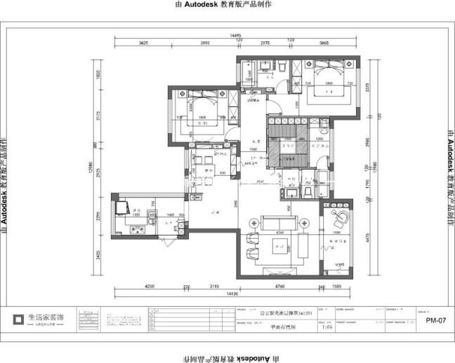
户型图
户型方正,布局紧凑,动静分离,功能分区明确,小面积大作为。入户的一个大入户花园提供了不错的休闲空间,厨房餐厅相连,方便了后期的烹饪和就餐。方正的房间,居住是不会显得压抑。客厅与生活阳台在一起,也方便后期的使用。
客厅
客厅简单的色漆与木色的结合,给人一种清新的感觉,简单的造型让居住感觉更加舒适,电视背景用地面金刚板上墙,使得整体空间更加整体。餐厅位置与走道玄关的壁龛点缀了整体日式的风格。原木色的家具与整体色调相呼应。
卧室
多功能房榻榻米的设计,为后期提供充足的储物空间,中间升降台的设计为后期的休闲提供方便,两个大的推拉门和木色折叠窗,跟客厅的整体色调相呼应,让了置身于日本传统茶室的感觉。
餐厅
原来的厨房包到餐厅来使用,让餐厅空间变大。生活阳台移到榻榻米房间旁,把原来的阳台给客厅使用,提供一个舒适的休闲区。
