融信澜郡复式 105m² 北欧风格
2019-12-27 19:01:01 查看人数 1495
案例面积:105㎡
案例户型:三居室
装修造价:约20万
案例风格:北欧
简约素雅的色彩架构,不乏质感的装饰细节,构筑出了一个舒适自然的感性空间。朴实精致的设计风格,和谐的色彩,细腻的工法,现代的精准气息,让古雅与简约在同一个时空里浪漫邂逅。
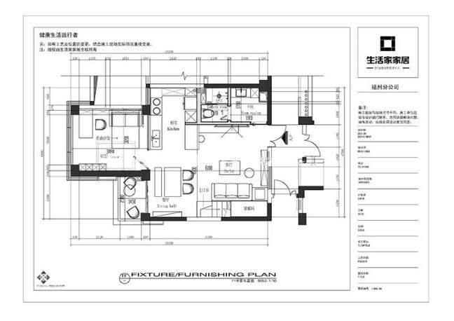
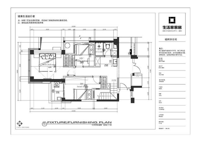
户型图
该户型为复式户型。整体空间较小,对空间的使用要求较高,一楼活动区域较小,动线较为模糊。
客厅
利用简洁明了的原木色搭配上暖人心意的淡粉色,给人一种初恋的感觉,搭配上鲜活的墨绿色,仿佛初夏的阳光照射身上,美妙而又温馨。
餐厅
用鲜活跳跃的颜色来点缀浅色调的空间,不会让人感到沉闷,给人眼前一亮的感觉,开放式的厨房 ,增加了空间的连续线,让不大的空间显得更大了。
