融侨观澜 105m² 现代简约风格
2019-12-27 19:19:15 查看人数 1653
案例面积:105㎡
案例户型:三居室
装修造价:约25万
案例风格:现代
以简约的风格为基础,在从表面的一些现代搭配下呈现出不同的意境,以简洁的表现形式中在呈现中在搭上一部分的原木效果,呈现出多方面的风格体验,风格相结合,整体的体现出主人的身份与品位。
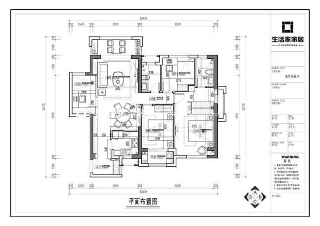
户型图
该户型为普通平层,三面采光,户型较为方正,户型动线合理。房间大小合适,每一个空间都有窗户,厨房的位置行对而言偏小了一点,客厅的小房间较为尴尬,整体而言,还是比较舒适的。
客厅
整体以黑白色块为主体颜色,整面墙用爵士白大理石配合拉缝作为电视背景墙,沙发背景墙用原木来搭配中和黑白色效果,搭配层架,考虑到后面的小房间,利用玻璃隔断来延伸空间,简单的跌级配合黑钛圈边,简单却不失质感,整体空间舒适。
餐厅
餐厅背景利用原木色为主体,配合壁画,与沙发背景墙形成呼应,小房间使用的玻璃推拉门显得空间更大,利用壁画来调节墙面的单调,灯带加圈边的吊顶使得客餐厅空间分隔,吊灯利用风扇灯,在炎热的夏季更加清凉,舒适实用。
