皇庭美域132m² 新中式 风格
2020-01-12 17:09:49 查看人数 1481
案例面积:132㎡
案例户型:三居室
装修造价:约26万
案例风格:新中式
用心探索不同的空间属性,进而展现出独一无二的空间特质,是这个设计案最吸引的魅力所在。家对每一个人来说,是用来收藏情感和记忆的地方,是涵养心灵的场所,这些与坐落位置、面积大小等附加条件无关,“设计”以人为主体,依使用者的实际需求与喜好,搭建人与空间的和谐对话。
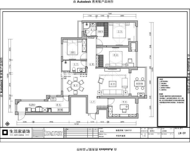
户型图
本套户型带有规规整整的四间房,大气有秩布局十分清晰明了,动静分区却不显突兀., 三开间坐北朝南, 多飘窗,大阳台,采光性性十分良好.独立厨房,厨餐过度相对自由,
客厅
看似低调冷艳的雾霾灰在材质转换的加持下,为空间带来一丝温存与高雅之感,串联起室内的情感主线。墙上的挂画写实刻着岁月痕迹的树皮纹理,而垂钓者的雕塑、精致的鸟笼、旅行时淘回来的木雕,空间内这些错落有序摆放的小品,都透着日常的味道,朴实无华。
卧室
不似以往的传统中式风格装修,它的空间里面,含有了非常冷静清凉的一面。驾着西方之色,创造出了既有西方形式美、又有东方意境美的形神兼备的艺术精品。
餐厅
几何艺术吊灯、简净的家具形制,营建空间的当代美学格调,而一旁的巨框水墨画作突出东方笔触,颇显意境。置物架上的旧报纸、茶叶罐以及失准的天平装点出一片趣致,这些微小的物件随着设计师的感知与设计手法的映照被重新发现并且放大,显露出其专属的、独特的意味与美感。
