正荣悦澜山103m² 北欧风格
2020-04-29 14:16:53 查看人数 867
案例面积:103㎡
案例户型:三居室
装修造价:约18万
案例风格:北欧
设计的时候充分合理的利用空间的特性视线开阔,北欧风格家居设计,简洁、干练,让家中呈现一种自然的舒适、干净之美。一股浓浓的老式北欧范,现代与自然元素想结合,温暖的色调一致搭配。让整个餐厅温暖起来。再加上吧台的设计,让家居生活更轻松随性。
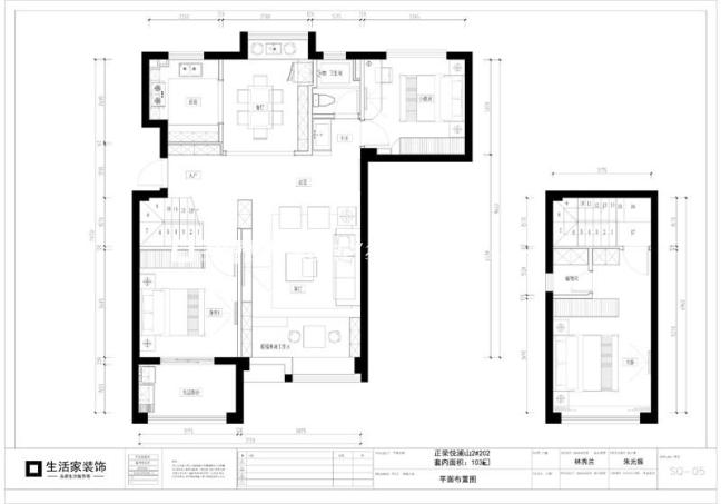
户型图
各个空间户型方正,后期空间利用率高;全明户型,各部分空间均有窗,可保证整体空间采光和通风,居住舒适度好;整体空间布局合理,能够保证动静分离和居室通风,方便使用;各个功能区的尺寸比例规范,布局合理,能很好地满足日常功能需求,整体空间开阔,采光充足,居住舒适度好增加活动区域与采光通风通透飘窗,畅享舒适阳光生活。
客厅
采用了灰色地砖、吊灯、组合沙发、地毯、茶几、灰色、灰蓝色、白色的搭配,简约的家具强调了活泼俏皮的设计风格。墙面暖色调不像灰那样慵懒,也不像蓝那样张扬,细腻温润的色泽有着自己独特的睿智和冷静,并给人以更大的想象空间、深思及平和的视觉感受。
卧室
主卧温润的木质地板、配上白色细条纹床品,让屋里洋溢着静谧的气息。陈设简单但别具巧思,金属式吊灯、背景墙上的写意挂画和床头柜的珊瑚棒,色彩及形态的过渡都别有一番趣味。
餐厅
采用轻巧的艺术吊灯,搭配良好的采光和鲜活的植物, 让进餐都变得轻松有趣起来备餐柜采用了木色,温润统一的木色让空间平静而整体,用最简单的材质及颜色表达最真实纯粹的生活。营造出生活的质感,不乏味。以舒适为主,满足生活需求的前提下将经典元素提炼出来,让生活充满温馨浪漫的情调。
