融侨官邸 95m² 现代风格
2020-05-24 16:24:54 查看人数 1509
案例面积:95㎡
案例户型:三居室
装修造价:约18万
案例风格:现代
灰白的纵横交错,形成了独特的韵味,地面以沉稳的灰色调为主,与墙面的白色调形成了鲜明的对比,在突出其本身现代风的简约上也不会因为两种颜色形成强大的反差,客厅家具大多以暖白色为主,可以更好地融合其墙面的色系。
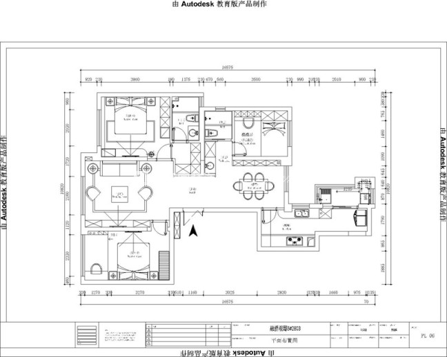
户型图
空间内的承重墙较少分布比较平均,空间利用率较大,房屋四面都有窗户,采光与通风良好,即使在晴朗的白天,有时也不需要开灯,整体户型可塑性强。
客厅
客厅处的设计以大气与舒适感为主题,沙发背景墙以长条工字型铺贴方式以此来提升客厅整体的效果,同时也不忘其家装风格的简约与大方;而客厅的吊顶则采用其风格的简单大气为主,制作了一些简易的吊顶与吊灯,从整体上而言,简单的装饰在为客户省下一笔开销的前提下也不忘提升其整体效果。
卧室
主卧以暖色调为主体色,床的背景墙以浅棕色来进行装饰,并以大小不同的饰面来进行简易的修饰与装饰,即显得不会太过单调也不会太过于复杂而破坏其本身的风格,并在其上挂上一幅挂画进行装饰,床的左侧用于放置衣柜透明的柜门能增加其空间的独特性与整体性,总体来说卧室属于休息区无需过多的线条,简单的装修能为紧绷的神经起到放松的作用。
餐厅
玄关处大理石抒写着沉稳大气的生活态度,设计上将玄关柜背景墙以长短拼的形式制作造型,使其与玄关柜和挂画显得较为特殊,以增加其本身的大气感与舒适性,,完美呈现出主人对品质与自我的追求。玄关处的吊顶也起到了良好的灯光供应效果极大程度上增加了其本身的美观程度,为全屋的美观性提升到了一个极高的高度。
