世茂璀璨天城 120m² 现代简约风格
2020-05-24 17:24:57 查看人数 1349
案例面积:120㎡
案例户型:三居室
装修造价:约24.5万
案例风格:现代
现在的现代简约风格装修很多都融入了现代时尚的元素,称为现简约风格。设计以现代简约风格为主,配合户型本身较好的采光率,整体呈现了既舒适实用、又美观大方的家居样貌,空间使用率非常高。将餐厅与客厅连通,显得公共活动区域极为大气。
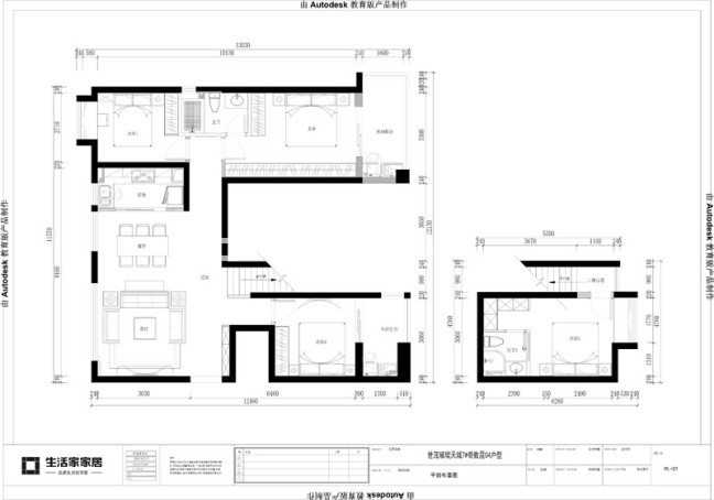
户型图
户型方正南北通透 ,整个小区户型视野采光较好,标准的三房。次卧室的飘窗可以打掉,增大卧室空间,可以更合理的利用。主卧设计有休闲阳台,实用性也非常强。客厅餐厅厨房作为一个连通空间,再连接着书房。
客厅
客厅整个空间以灰色系为主,灰色地砖与墙面灰色相呼应,加上灰色的沙发、艺术吊灯、吊顶采用玫瑰金装饰点缀更显得客厅的质感大气。电视背景墙采用大理石加上金属线条装饰,再加上木饰面装饰这样彰显出电视背景高端大气。沙发背景墙与电视背景墙采用不同的样式、材质沙发背景采用镂空式的屏风让整个空间更显精致大气。绿植的点缀,让整个家显得生机勃勃,浅棕色沙发独靠在落地窗一边,精美的电视柜上摆放装饰品,圆形大理石的茶几与电视背景墙相呼应。客厅艺术吊顶加上简约艺术地毯给整个空间带来温暖。入户玄关左边设计精美简约鞋柜灯带的衬托更显得精美大气,
