融侨尚东区 98m² 复式 现代简约风格
2020-05-30 15:04:22 查看人数 686
案例面积:98㎡
案例户型:三居室
装修造价:约20万
案例风格:现代
方案设计风格为现代简约,整体空间以红白,白色为主,红色为辅,让空间更显整体,简洁而不失单调。再以米黄色家具作为点缀,使整体的风格没这么的单调,灯光照射在浅灰色的瓷砖上,让餐厅更加的宽敞明亮。
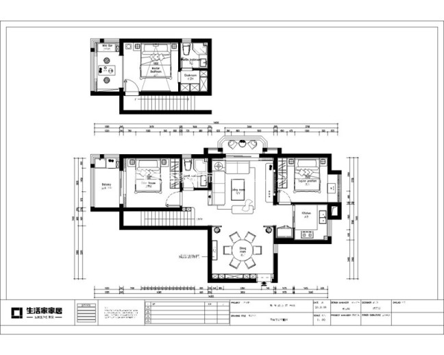
户型图
户型为复式,为三室一厅一卫。走进入户,正前方就会看到餐厅及客厅,左侧则是入场摆放的鞋柜与衣柜。
客厅
电视背景墙采用白色原墙体,纯白搭配,沙发靠客餐厅那边设有屏风格局鲜明,使整个客厅显得简约。米黄色的沙发,配上与沙发一体的保证,显得非常的个性,加上灰的几何图形地毯,简约风格十足。
卧室
灰色软装搭配红木床头贵显得高贵而不失优雅,灰色的床头背景墙,墙上还带有了带有中国元素的挂画,让全屋的中式风格大大的提升。左侧则是主卧的休闲区,在无聊的时候可以在休闲区内泡泡茶提升生活品质。
餐厅
木材材质的餐桌和木质餐椅,使生活更加的贴近自然,餐桌上摆放着蓝绿色花瓶,净化了空气,就餐时又可以让你闻到一股淡淡的花香,使你神清气爽。
