融侨观邸 96m² 现代简约风格
2020-08-28 14:31:49 查看人数 1316
案例面积:96㎡
案例户型:三居室
装修造价:约25万
案例风格:现代
处理空间方面强调室内空间宽敞、内外通透,在空间平面设计中追求不受承重墙限制的自由。墙面、地面、顶棚以及家具陈设乃至灯具器皿等均以简洁的造型、纯洁的质地、精细的工艺为其特征。并且尽可能不用装饰和取消多余的东西,认为任何复杂的设计,没有实用价值的特殊部件及任何装饰都会增加建筑造价,强调形式应更多地服务于功能。
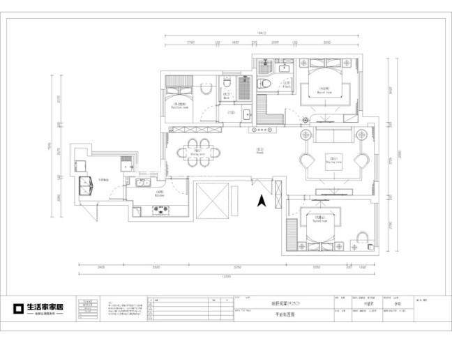
户型图
户型方正、动静区分明显、合理。南北通透,超高空间利用,衣帽间,细节舒心。,功能全,享受自然采光,通风光照优秀,户型方正,实用性高,卫生间设计,方便实用,客厅和餐厅作为一个连通空间,进门时感觉空间大,显得大气。
客厅
客厅沙发背景墙挂有四副挂画可以作为装饰或点缀的作用,沙发选用灰色的抱枕和地上的地毯颜色相近单椅选用黄色让整个空间亮起来。电视背景墙选用大理石玫瑰金边条,让客人有耳目一新的感觉,使来宾消除一天奔波的疲劳。
卧室
卧室作为休息放松的重要地点,即使是简单装修也不能够缺少基本的要素。所以在卧室简单设计时我应用了比较舒适的浅蓝色装饰增添了玫瑰金的映衬简单大气它使这间纯净的卧室更富有浪漫的情致。
餐厅
进门可以看见一幅挂画和一些装饰品墙面采用墙纸饰面,地板上的圈边让玄关处有一番风采,吊顶采用正方形吊顶搭配灯带吊灯,吊顶简约大气,浅啡色墙面在蓝黑色挂画的映衬下优雅的姿态表露无疑,由金属边条制作而成的桌子表现出空间的不凡。
