世茂·璀璨天城125m² 现代简约风格
2020-08-29 18:14:21 查看人数 1160
案例面积:125㎡
案例户型:三居室
装修造价:约23.6万
案例风格:现代
本套方案设计师采用现代的装修风格,客厅背景墙采用大理石瓷砖与铝钛线条的搭配即让造型整体融汇贯通,也使得空间的整体性更加突出。选材颜色简单大方,设计师将颜色造型很好的融入到现代的风格中,如今都市生活节奏快,工作压力大,不想再为生活所累,希望在家中彻底放松身心,享受生活,那这种简洁大气的色调是不错的选择。
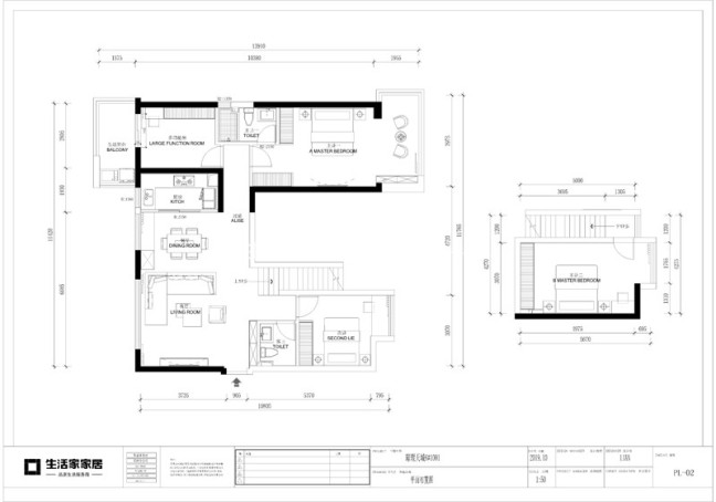
户型图
本案户型原结构是复式,套内面积有125㎡,空间利用率很高,使得整体布局起来可以充分满足业主的需求。该户型南北通透,通风采光都极佳,最后出来的整体空间效果很清爽通透,空间动静线也变得更为人性化和合理化。
客厅
电视背景墙采用大理石瓷砖上墙加上铝钛线条的装饰,是整个客厅的设计亮点,背后沙发则是与餐厅相呼应,让视觉上更为广阔舒适,沙发采用浅色灰白的布艺L型沙发,加以大理石金属相结合的茶几,过道则以壁画装饰加以灯光效果,使整体空间更加舒适,简洁又不失现代风格的大气。
餐厅
餐厅的设计让空间显得更为简单柔和,充满现代风格韵味和大气。餐厅,配以与大地砖同色系的大理石加上布艺凳子使得空间更有质感。
