三盛国际公园- 129m² -新中式风格
2021-01-17 18:02:32 查看人数 1106
案例面积:129㎡
案例户型:二居室
装修造价:约30万
案例风格:新中式
新中式风格是通过对传统文化的认识,将现代元素和传统元素结合在一起,以现代人的审美需求来打造富有传统韵味的事物, 让传统 艺术在当今社会的到合适的体现, 表达对清雅含蓄、 端庄丰华的东方 式精神境界的追求。
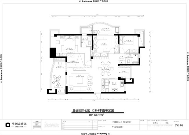
户型图
本案原房型较为规整,而屋主最大的要求,就是要有充足的储物空间;我们一直倡导改造因生活而生,将屋主需求与房屋现状结合后,不负众望,将储物空间做到了极致、纯粹。
客厅
客厅,客厅总是承载着我们很多的期待,我们期待能在这里与家人促膝而谈,与友人把酒言欢;所以我们赋予它不同于其他空间的意义,总是把房子最大的,采光最好的空间留给它!古朴优雅是中式的韵味;简约明快是现代的特性,两种风格相交融,是石材质感与木质纹理的交锋,也是土黄色与云朵白的会晤,更是现世与虚幻的交汇。
卧室
主卧用了灰色作为底色,配合背景墙灯带的设计,给整体空间增加了特色,同时拥有着充足的储物空间。
餐厅
每一个时代都有它独特的文化与美丽,我们也许无法清楚说出来,但这种摒弃了负重的纯粹设计,总能让我们在冥冥之中隐隐约约的感受到时代交锋的魅力,这,也是设计师的魔力。在餐厅边上就是一个开放的西厨,给餐厅空间增加了更多的采光。
