龙湖天宸 165 美式
2021-04-17 16:19:15 查看人数 1306
案例面积:165㎡
案例户型:三居室
装修造价:约16万
案例风格:美式
居家风格象征屋主个性、生活理念,甚至是过往记忆之重现。
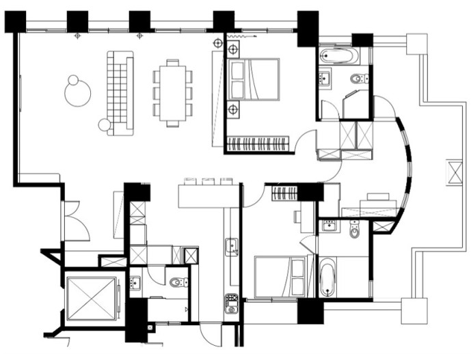
户型图
女主人偏好红砖墙、工业元素,设计师以老砖堆砌出屋主对大苹果的浓厚情感,男主人喜爱之现代利落感则运用在玄关,一进门就能感受设计师为空间注入勇者之都充沛能量。
客厅
客厅以女主人喜爱的红砖墙面作为亮点,从客厅延伸至餐厅,象征开放性场域连贯性,设计师特别采用老砖而非文化石红砖,保留手工厚实韵味,加上乐土塑造出仿清水模纹路,电视墙面另外置入镜面,既能隐藏电箱,又为空间增添层次感,搭配深色木地板,传达出居家沈稳调性。
卧室
主卧:由屋主喜爱的灰黑色调塑造出卧房,搭配窗边自然洒落光线,串连出专属私领域的舒眠空间,墙面皆采用灰色质地,搭接部分木皮柜体,延展出简约不失稳重调性。 儿童房:由于屋主将规划着眼于客餐厅,房间布局皆以基本、舒适为主,如同儿童房以单面跳色墙面挥洒出活泼感,加上床头背板展示及收纳,简单满足空间应有机能。
厨房
厨房:原本是封闭空间的厨房,设计师将场域打通,搭配拉门赋予使用弹性,喜爱烹饪的女主人在下厨时能与外界有所互动,大火快炒时也能阻隔油烟。为加入男主人喜爱的利落风格,人造石中岛台面呈现出现代稳重气息,也让家中主客之间交流更加方便。
餐厅
餐厅:对于用餐时刻相当重视的屋主,考虑到访客较多,餐桌挑选 210 大尺寸款式,石材台面加上铁件组合,创造出丰富层次感,配上后方吊柜、实木书柜与订制矮柜,空间多了木质专属温润感;餐厅不只有用餐功能,亦是一座展览区,如同在纽约街头随时与艺术不期而遇的多元性。
卫生间
主卫:浴室中的天然石材色调与雪白元素和谐地结合在一起,而高贵的大理石产品镶嵌物强调了这种成分,从而在其质地上收集了温暖的灯光反射。
玄关
玄关:初入玄关,一目了然的中式摆件以及装饰画就奠定了空间的中式意境。进门处的鞋柜,既满足了屋主的生活习惯,又体现出对自然人文古意的喜好之情。
