龙乡小区73㎡北欧
2020-12-25 15:33:08 查看人数 6490
案例面积:73㎡
案例户型:二居室
装修造价:约12万
案例风格:北欧
此房为业主一家三口人居住,比较喜欢传统文化,这套房子的设计风格定位为北欧风格,阳台和客厅的设计是整套设计的亮点,既能满足风格的要求,也能满足业主对生活品味的追求。两个次卧室拆掉中间墙体,采用打通设计,需要单独使用的时候可以用推拉隔断分隔开。
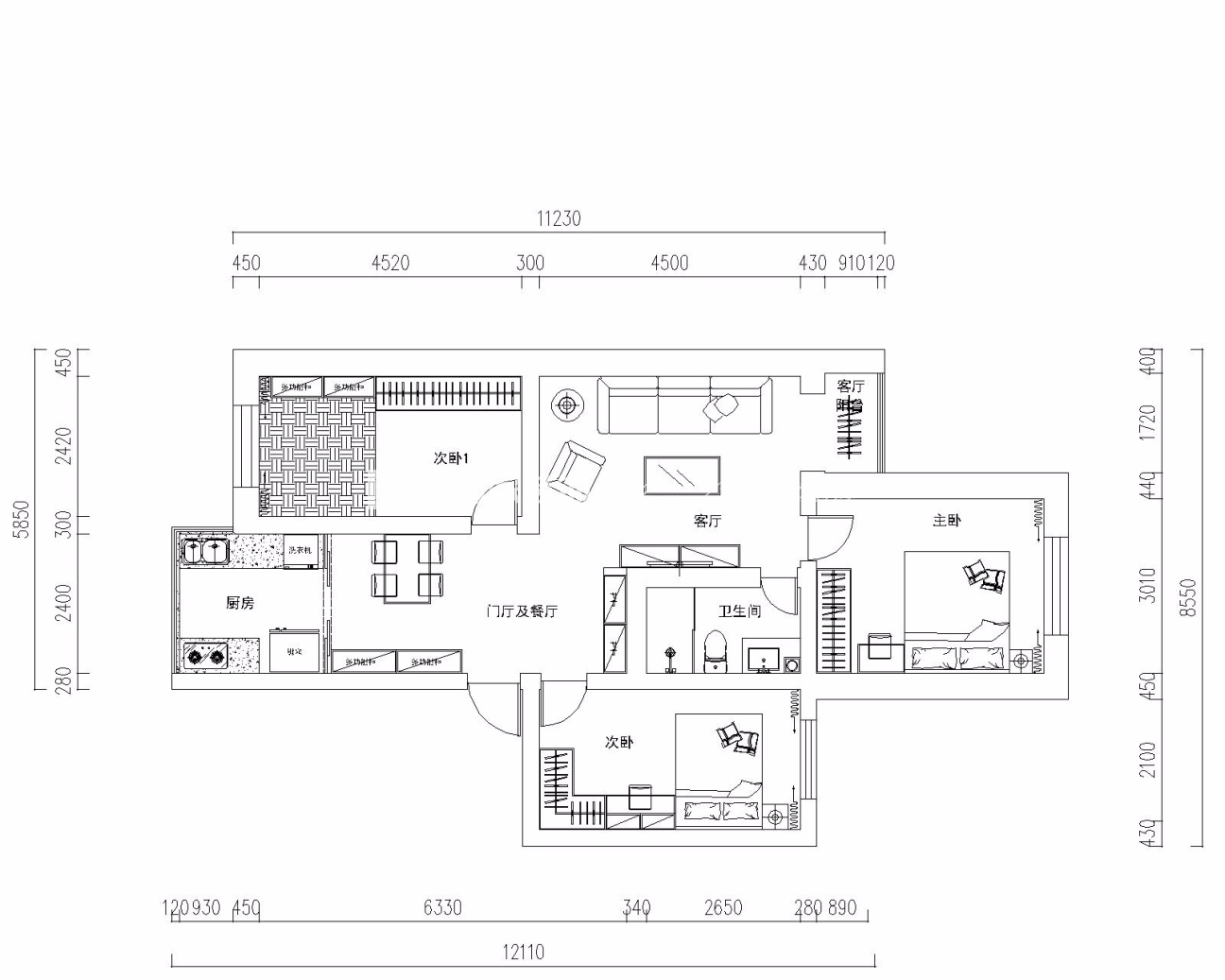
户型图
此户型为二室两厅一厨一卫格局,户型比较方正,南北朝向,主卧室及客厅面积比较大,次卧室及厨房面积较小,业主对门厅不是很满意,面积比较小,放不下鞋柜,希望设计师可以设计出鞋柜,两个次卧面积都比较小,业主希望既能多住几口人,又能兼具其它功能。
客厅
客厅和餐厅一体,客厅飘窗在东方,采光通风良好,餐厅的位置设计了酒柜,酒柜中间可以放置微波炉及咖啡机。
卧室
卧室布局没有太多的变化,主要满足平时的生活需求,为了增加面积,打掉了主卧与阳台间的窗台,改为推拉门。衣柜采用入墙式设计,美观实用。
次卧
书房与儿童房做打通设计,同时兼具客房的功能,榻榻米的设计既增加了储物空间,也可以给孩子更大的活动空间。
