中粮锦云天城112平三居室简欧装修实景案例
2020-11-12 15:43:38 查看人数 1190
案例面积:112㎡
案例户型:三居室
装修造价:约19.2万
案例风格:简欧
业主为80后在编教师,长居人口为夫妻二人。想要的是一个可以生活的家,有花有草,很喜欢一些原木的材质和纹理,家里无需过多的装饰,舒服自然就好。而北欧风恰恰就是他的千里马,业主就是伯乐。北欧风以原木与白色基调为主,搭配软装的色彩来达到一个清新典雅的气氛氛围.
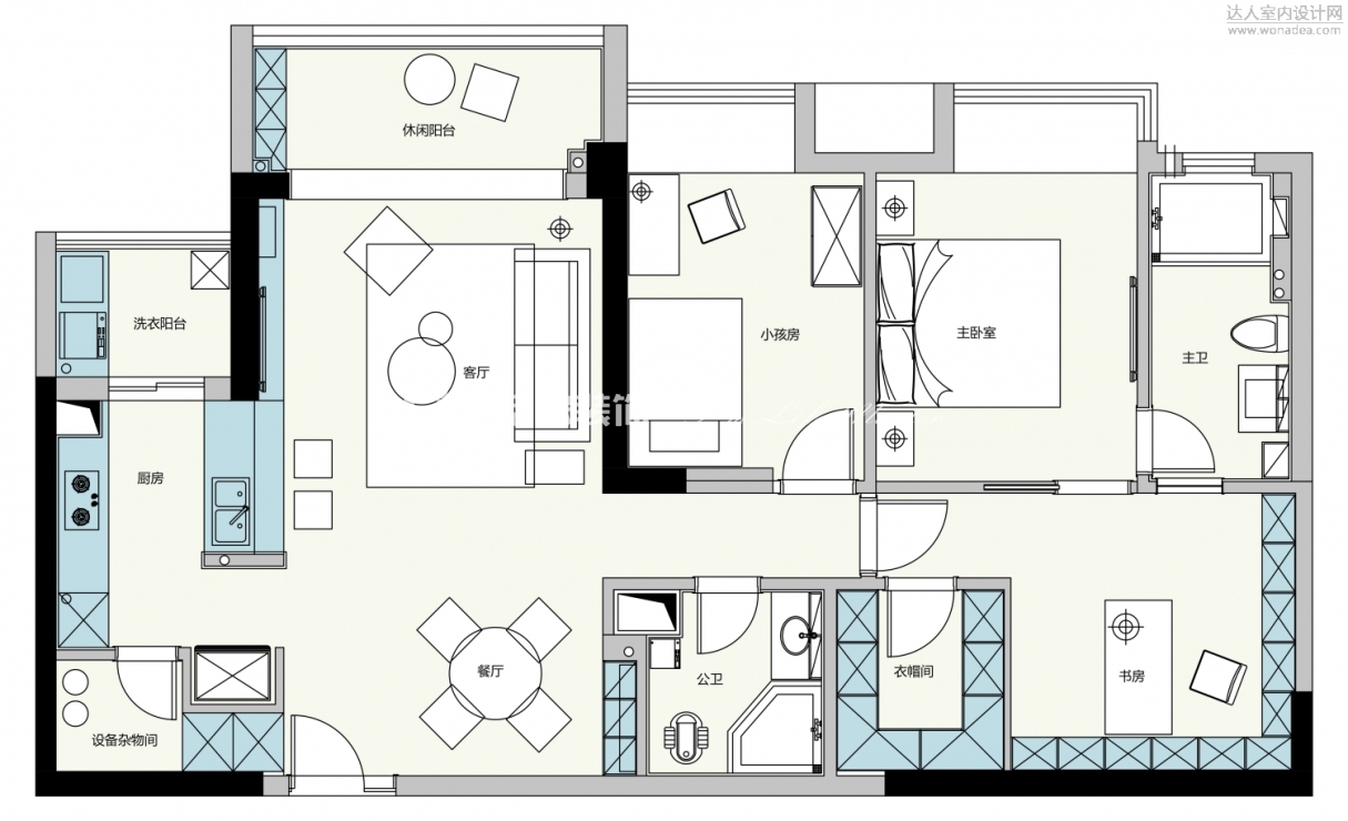
户型图
原始户型图
客厅
进入客厅冲击你视线的并不是绚丽的色彩,亦不是光洁的大理石。白色纯洁的墙面,映射自然的地板,虽为普通的材质,在互相的搭配下绽放属于它们自己的优雅。
卧室
主卧采用了榆木的床,软硬适中且很有质感,墙面为素色,简洁典雅。墙面搭配圆形的云雾山画。使得卧室更加有意境。
餐厅
开放式厨房打破了传统的厨房格局。拿掉电视背景墙来做吧台,使得厨房和客厅的连接更加有趣,因为现在大部分家庭都不在客厅看电视,所以也就弱化电视的功能。在做饭洗菜的时候能和客厅的空间互动 也是另外一种感觉。
次卧
书房大量运用原木材质,尽显书香门第。原木搭配白色吊顶,宛如身处幽兰,长远而静谧。黑色极窄边框的玻璃门使得书房与卧室相隔。形成独立的空间
卫生间
卫生间地面为六边形黑色地砖,黑色地砖的衬托下搭配了10*10的白色方砖作为墙壁。在黑色的衬托下白色显得尤为突出。品质,典雅,是你进入其中映入脑海的名词。
