金融街官邸120m² 日式风格
2019-10-31 14:09:42 查看人数 875
案例面积:120㎡
案例户型:二居室
装修造价:约22万
案例风格:日式
以业主的生活习惯为出发点,增加足够多的柜子,电视背景做柜子的形式,突出了日式风格的感觉。整体空间以木色为主色调,木色与白色的穿插,让简约大方的空间烘托清新的气氛。通过各种各样的年轻简约的元素,打造出一个充满了意境的空间。
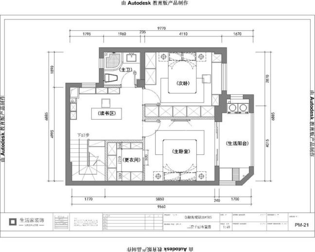
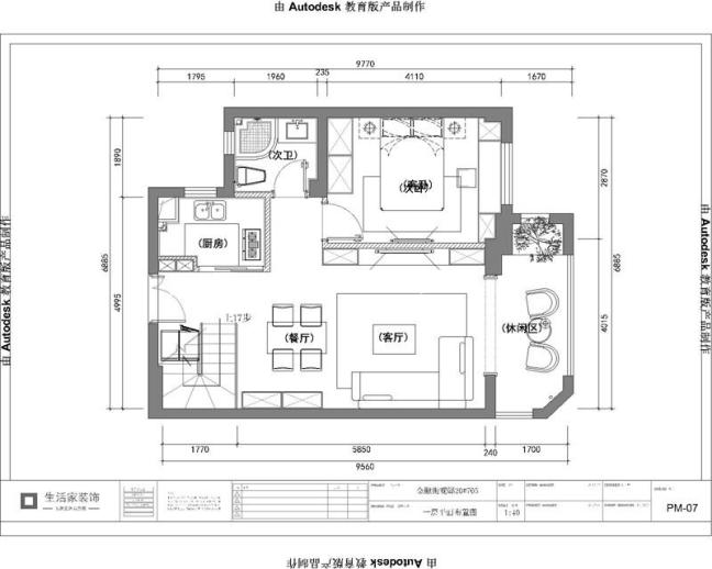
户型图
本案户型每个地方都很方正,采光充足,动静分明。各个空间户型方正,方便室内家具布置;整个空间全明通透,采光良好,同时利于居住空间通风;整个户型空间布局合理,做到了干湿分离、动静分离,方便后期生活;各个功能区的尺寸比例规范,布局合理,能很好地满足日常功能需求,整体空间开阔,采光充足,居住舒适度好
客厅
客厅与餐厅连接在一起,根据业主的要求储物空间要多,电视背景墙设计出储物柜的形式,白色面板与木饰色的衔接,突出了整体空间的舒适。柜门才有推拉门的形式,突出了日式的感觉,有给后期居住增加了娱乐性。
餐厅
厨房的推拉门采用木色的门套,与我们整体的风格相呼应,白色的墙砖与木色的橱柜,烘托出来居家的氛围,又能保证后期厨房里的采光性。
