泰禾金尊府 120m² 美式风格
2019-10-31 14:24:14 查看人数 786
案例面积:120㎡
案例户型:三居室
装修造价:约31万
案例风格:美式
本案是一家三口居住。男业主平时工作比较忙碌,回到家后想要拥有轻松,放松的环境。布艺的沙发、简约的抱枕、精致的挂画以及温暖的灯光,给人舒服典雅的感觉。午后的阳光,透过窗户肆意的洒在身上,暖暖的很舒服。
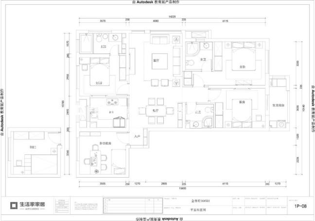
户型图
业主需求,一家三口,父母过来帮带孩子,需要满足一家人居住的功能空间,同时考虑小女孩已经开始上学,夫妻两平时喜欢看书,偶尔可能会有老家的人过来,需要一间休闲泡茶区。
客厅
客厅空间面积较大,选用藕色墙壁搭配白色吊顶,空间色调平和过渡,选用米色系组合沙发,茶几作为客厅空间深色出现,避免客厅空间颜色过轻,深浅搭配,空间色彩更为和谐;电视墙选用灰蓝色墙壁搭配白色护墙板作为背景,浅蓝边框小面积出现,丰富墙面层次的同时,突出墙面重心。
餐厅
餐厅考虑到常住人口数量,餐桌选择居中摆放,留出充足的过道空间;在餐椅的选用上,我们选用深色餐桌椅与客厅茶几同色系;餐厅对墙设计一排餐边柜,有效利用闲置空间,也为公共收纳提供了更多的空间。
