连江正祥•日照家复式88m² 现代轻奢风格
2019-10-31 14:55:08 查看人数 969
案例面积:88㎡
案例户型:三居室
装修造价:约23万
案例风格:轻奢
业主夫妻两都是30多岁的个体户商家,目前就一个小孩,不过老人家偶尔会过来照顾小孩,所以空间上的布局二楼设计了三个房间,方便业主一家人的居住,生活阳台经过老人房方便老人家后面的使用。开放式厨房与吧台的设计,既保证的后期的厨房采光,又显的空间感大气。
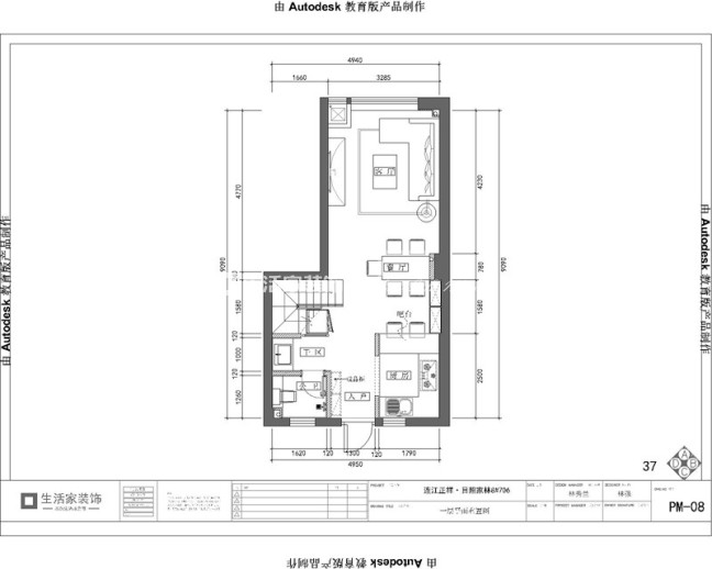
户型图
原户型一二层都有一个阳台,但是客餐厅的位置相对就比较小。一层厨房和卫生间分别在入户进门的左右两边,原建筑楼梯上楼的位置为靠左,比较浪费空间。二层的小孩房和卫生间也相对偏小。
客厅
客厅把原客厅阳台打通,使得客厅的空间更大,又因为业主全家都喜欢深色系的,所以在沙发背景上设计了深色的木饰造型,与电视背景墙的木饰面和大理石造型相呼应,沙发用浅色布艺的又能突出整体的效果,又不会使空间看起来太压抑。
餐厅
厨房设计成开放式的样子,与吧台的结合让厨房的档次得到提升,又给业主后期的休闲品酒提供了产地。白色烤漆面的橱柜与深色的墙砖又能与客厅的深色木饰面相呼应,让厨房空间更加明亮。
