榕鹭佳苑96m²现代简约风格
2019-11-19 09:56:55 查看人数 2005
案例面积:96㎡
案例户型:三居室
装修造价:约20万
案例风格:现代
方案设计的风格为现代简约,在客厅的右侧设计了一扇落地玻璃门,这一设计不仅可以让业主在观赏窗外风景的同时增加了客厅的采光,室内光线充足,搭配现代简约风格的设计,给人温暖,舒适的感觉,主要色调与家具选择方面也应业主需求采用原木色为主,辅之以其他颜色点缀。
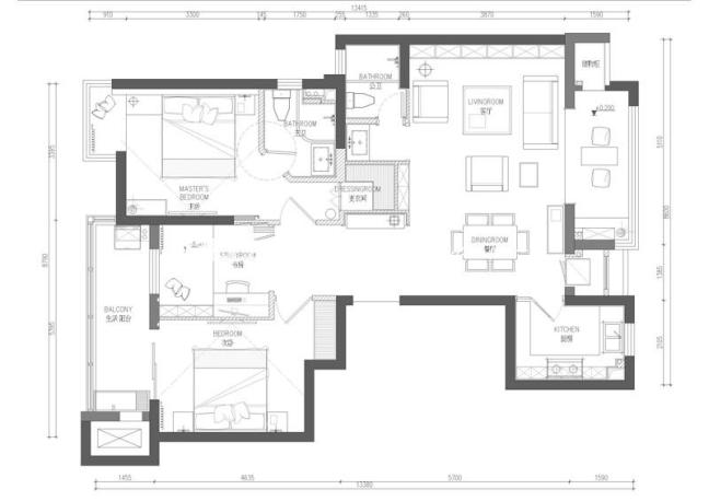
户型图
该户型较为方正,客厅与卧室的采光良好,通过设计师的改造,进门视野较为开阔,没有墙体或其他不必要的东西遮挡视线,在最大程度上使得屋内的每一寸空间都得到了充分的利用。
客厅
客厅右侧的落地玻璃窗,增加了客厅的采光,阳光与原木色家具相结合,给人温暖舒适的感觉。电视背景墙采用深棕色的木材,相比于浅色的原木色家具,跟给人一种稳重,踏实之感,不同的颜色也给整体效果增添了视觉效果。
卧室
整体的色彩以白色为主,以简约的设计理念贯穿整个主卧的设计,纯白色的背景墙,并没有多余的装饰,两个造型简约的壁灯,投射的暖光,在夜晚时分,柔和的灯光营造了一种安静温暖的感觉。
餐厅
墙面整体采用白色的墙漆来装饰,搭配了与电视背景墙颜色一样的木质柜子加以装饰,在餐桌及餐椅的选择上还是尊重业主的要求,采用了简约造型的原木色家具,餐厅背景墙,挂有一幅装饰画,整体效果显得更加活泼生动。
