阳光城山以海87m² 现代简约风格
2019-12-25 13:20:48 查看人数 1046
案例面积:87㎡
案例户型:三居室
装修造价:约18.5万
案例风格:现代
整体设计说明以黑、白、灰色为主色调,客厅沙发背景墙是餐厅背景灰色与地面灰色大地砖相呼应。加上墙上的挂画衬托空间美感,简洁的吊顶,个性化的艺术灯营造出现代美感。家具运用了灰、白、搭配,客厅利用一面墙装饰玻璃隔断照射出整个客厅的空间简洁、大方、视野宽阔。
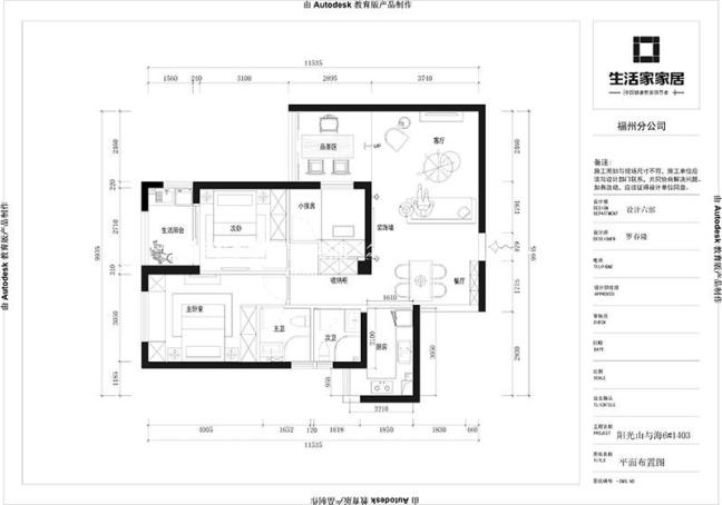
户型图
优点卧室采光好;有三个阳台,空间利用率高。南北通透 ,缺点承重墙多,限制空间改造。厨房功能单一,满足不了现代生活中西厨,层楼梯设置位置不合理,将客餐厅分隔成了两个区域,公共区域分割零碎,空间不够大气。
客厅
客厅透过点、线、面、玻璃隔断的联动让空间产生独有的动态感官强化了整体直接的连贯性。大大的落地窗过滤进来的光线 跳进客厅的每个角落 。有人喜欢安静,有人偏爱张扬,有人追求时尚,亦有人执着于极简,家也就因此拥有了不同的灵魂。电视墙针对业主的需求做了优化实用简洁又美观,功能性和舒适度永远都是首要的。”营造空间氛围的同时,植入人性化考虑展现空间特有的品位,以此表达现代人的生活情调及对未来生活质量的完美追求,泡茶区与客厅相连也真正契合了整个空间主题。
卧室
主卧延续整个空间的格调,每一处的细节处尽显优雅与奢华,以灰、白色为主,灰色衣柜与白色烤漆电视柜再以深灰色窗帘点缀,并以床头背景布艺硬包打造利落的背景墙,令空间温厚而沉稳简洁的装饰对每个空间进行恰到好处的点缀。现代的格调,不骄不躁的高雅,从细节上将生活品质体现。
餐厅
餐厅既有敞亮的用餐空间,柜体设计既是展示、储物,也是一家人记忆的存放区。白色餐椅与灰色餐桌、桌上的干花,餐桌上精致的餐具搭配彰显出整个餐厅空色彩亮丽,利落。加上简单吊顶、艺术吊顶,玄关的挂画彰显出现代的审美观。
