阳光城金融街官邸118m² 现代简约风格
2019-12-25 13:29:04 查看人数 1233
案例面积:118㎡
案例户型:三居室
装修造价:约25.4万
案例风格:现代
黑与白的交集,即是两种极端,却可以完美的拼接在了一起,简易的吊顶与简洁家具构筑了一副素雅的画卷,简单家居风格与家具的融合形成鲜明的对比,却与融合其中为整体风格增添了一丝淡雅与舒适感。
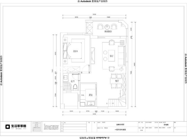
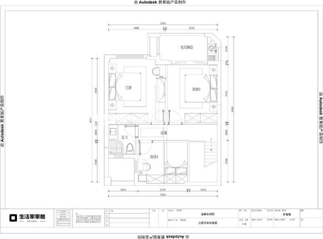
户型图
户型较为方正,柱子较少,空间内的承重墙较少分布比较平均,空间利用率较大,即使制作四个房间也不显的太过拥挤;房屋四面都有窗户,采光与通风良好,即使在晴朗的白天,有时也不需要开灯,整体户型可塑性强。
客厅
客厅沙发背景墙采用浅灰色为主,沙发背景墙采用浅灰色为主在加上背景墙上的金色边框艺术画使整个背景墙变得更加美观,而沙发再用白色这样使整个科通都很整洁,在加上浅灰色系花纹大理石使整个个乐町点的有一种温和感,还有地毯搭配使整个客厅都上档次,而电视背景墙采用白色花纹大理石为主而电视背景大理石两边采用了一小块玻璃然后在使用白色大理石使整个客厅变得更加美观,而整个客厅搭配看着让人感觉很整洁跟书质感。
餐厅
餐厅采用白色系跟浅灰色系为主,而餐厅跟厨房是分开的,餐厅背景墙采用浅灰色系为主,在加上墙面上的艺术画书整个背景墙变得更加美观,而餐厅背景墙也采用了木格这样使整个餐厅变得更加美观,而餐厅也采用了酒架这样的餐厅空间利用的很充分,在加上桌椅的搭配使整个餐厅点的更加整洁舒适。
