阳光城金融街官邸113m² 新中式 风格
2019-12-25 13:35:40 查看人数 1068
案例面积:113㎡
案例户型:三居室
装修造价:约25万
案例风格:新中式
在新中式装饰风格的住宅中,空间装饰多采用简洁、硬朗的直线条,有些家庭还会采用具有西方工业设计色彩的板式家具与中式风格的家具搭配使用。直线装饰在空间中的使用,不仅反映出现代人追求简单生活的居住要求,更迎和了中式家居追求内敛、质朴的设计风格,使中式风格更加实用、更富现代感。
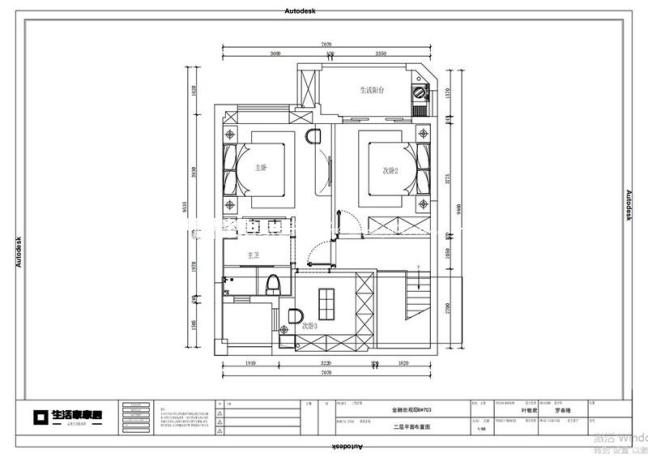
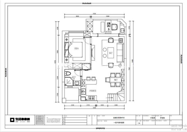
户型图
整个小区户型视野采光较好. 客厅和餐厅作为一个连通空间,进门会感觉空间很大. 次卧室的飘窗可以打掉,增大卧室空间,可以更合理的利用. 空间较零碎需要调整. 两个卧室在朝南边的位置,南边的阳光好,居住起来会舒服很多.
客厅
客厅与主卧一沉稳的木色为主,客厅是传统与现代居室风格的碰撞已木色为主客厅采用屏风式的沙发背景墙两侧有浓淡适宜的水墨画,整个空间木色运用的比较多搭配香槟色的点缀使整个空间色彩分明,采用方长形的茶几让整个空间看上去比较舒服,电视背景墙左右两边采用木饰面和香槟金圈边,中间采用大理石看起来很大气。客厅上方的吊顶也显的简单时尚与美观,为客厅整体空间的美观程度上添加了一丝大气感。
厨房
开放式厨房与餐厅客厅相连在一起大气,开放式厨房显得空间宽阔,吊柜采用米白,地柜采用胡桃色搭配在一起,显得厨房有层次感。厨房傍边设计一个水吧台,会客时可以聊天娱乐。
餐厅
餐厅与客厅相连,高端大气的餐桌搭配精致的餐具和皮椅更加凸显出新中式风格。简约的餐边柜,设计为镂空式和灯带,在镂空式的餐边上摆上装饰品和干花显得不单一,再加上艺术吊灯给整个餐厅带来一缕温馨感。
