新城金城湾117m² 新中式 风格
2019-12-25 13:40:09 查看人数 1011
案例面积:117㎡
案例户型:二居室
装修造价:约25万
案例风格:新中式
在此次的新中式设计案例中设计师打破固有的标准,利用设计作为手段,让无锡别墅装修在传统美感中表达对空间功能提出的诉求,并呼应当代精神与生活价值。预留设计一个空间给业主放置钢琴。
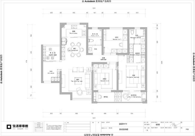
户型图
整体户型利用空间高,南北通透,彩光很好,有三个阳台小区绿化优美,空气清晰。户型较为方正,柱子较少,空间内的承重墙较少分布比较平均,空间利用率较大,即使制作四个房间也不显的太过拥挤;房屋四面都有窗户,采光与通风良好,即使在晴朗的白天,有时也不需要开灯,整体户型可塑性强。
客厅
客厅主要特点在从门厅进入客厅的纵向性布局基础上,以地毯颜色和吊灯装置阵列分布相呼应,从视觉上,形成了客餐厅和品茶区空间的延伸感。在塑造空间、舒适的氛围时,家具也是以舒适为主,释放空间尺度茶几使用浅棕色与精致茶几结合,
餐厅
这种创新性的大胆尝试彰显了当代人文情怀;天花的吊灯延续了梁体与装饰画的主题,当代触感极强,浅棕色的主沙发软垫触感柔和不落俗套也不露锋芒,营造出舒适放松的家庭氛围。
