融侨悦城 67m² 现代简约风格
2020-05-30 15:27:44 查看人数 658
案例面积:67㎡
案例户型:二居室
装修造价:约14万
案例风格:现代
方案设计风格为现代简约,整体空间以灰白,灰色为主,白色灰为辅,让空间更显整体,简洁而不失单调。再以灰色和黄色家具作为点缀,使整体的风格没这么的单调,灯光照射在米白色的瓷砖上,让餐厅更加的宽敞明亮。
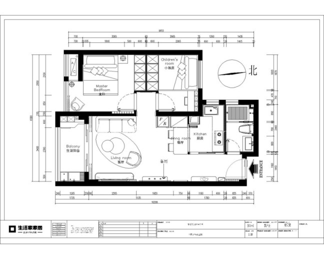
户型图
户型为平层,为二室一厅一卫。走进入户,正前方就会看到客厅,做侧则是日常摆放鞋子和包包的柜子。鞋柜对面厨房与卫生间。
客厅
电视背景墙采用普通墙体,灰白搭配,两旁边还包着着白色的包边,使整个客厅显得简约。灰色和黄色的沙发,配上色彩鲜明的靠枕,显得非常的个性,加上灰黑黄的几何图形地毯,简约风格十足。
餐厅
木材材质的餐桌和木质餐椅,使生活更加的贴近自然,餐桌上摆放着蓝绿色花瓶,净化了空气,就餐时又可以让你闻到一股淡淡的花香,使你神清气爽。后面的原木背景,与餐桌融为一体。
