融信上江城110m² 简欧风格
2020-05-30 15:46:41 查看人数 672
案例面积:110㎡
案例户型:三居室
装修造价:约23万
案例风格:简欧
方案设计风格为欧式,整体空间灰色和白色,白色为主,让空间更显整体,让人身心觉得温馨,更显空间立体感,白色的硬包背景墙搭配青色饰板更显其主人的高大上、高贵。
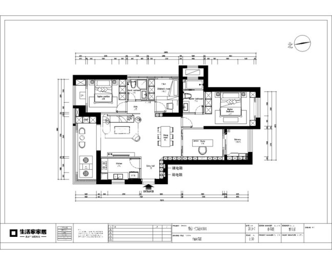
户型图
此户型为平层,根据业主的需求将书房做大有一个很舒适的看书环境,客厅空间宽敞明亮干净。
客厅
电视背景采用大面积浅灰色瓷砖玻璃与侧边黑色推拉门门框形成对应,有一种身临其境的感觉,沙发组合采用浅灰色的皮质沙发,更贴近、更自然的感觉,地毯则是用浅灰的颜色,与地砖融为一体衬托出舒适、时尚、美观的感觉。
餐厅
周围是白色的储物柜,与餐桌餐柜相互对应,让人看了比较舒服的视觉,再加上周围的浅灰色的地砖和白色的餐桌和柜子给予衬托,更显得空间高大上,让人觉得眼前一亮的感觉。
