正祥奥园康都90m² 复式 现代简约风格
2020-05-30 16:08:30 查看人数 720
案例面积:90㎡
案例户型:三居室
装修造价:约18.6万
案例风格:现代
方案设计风格为现代简约,整体空间以灰白,灰色为主,白色灰为辅,让空间更显整体,简洁而不失单调。再以灰色和黄色家具作为点缀,使整体的风格没这么的单调,灯光照射在浅灰色的瓷砖上,让餐厅更加的宽敞明亮。
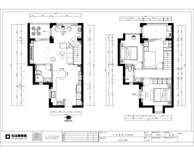
户型图
户型为复式,为三室一厅一卫。走进入户,正前方就会看到客厅,左侧则是开放式厨房和餐桌。右侧则是日常拜访的鞋柜衣柜冰箱等。
客厅
电视背景墙采用白色柜体,纯白搭配,沙发靠客餐厅那边设有屏风格局鲜明,使整个客厅显得简约。深灰色的沙发,配上与沙发一体的保证,显得非常的个性,加上灰的几何图形地毯,简约风格十足。
餐厅
木材材质的餐桌和木质餐椅,使生活更加的贴近自然,餐桌上摆放着蓝绿色花瓶,净化了空气,就餐时又可以让你闻到一股淡淡的花香,使你神清气爽。后面的原木背景,与餐桌融为一体。
