太平洋城 150m² 现代简约风格
2020-05-30 16:34:04 查看人数 1763
案例面积:150㎡
案例户型:三居室
装修造价:约28万
案例风格:现代
方案设计风格为现代风格,整体空间深色木色以及白色大理石为主色。阴阳协调,留白布局,让人感觉肃然起敬又让人感觉悠然自得。
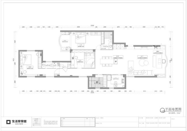
户型图
室两厅户型方正且紧凑,无较多浪费的空间、功能分布位置合理。大面积的客厅增加业主的舒适度,室内的采光通风效果较好,利用采光区域设计品茶区待人与客厅紧邻,增加空间的利用率,在品茶待人区有很大的储物空间,可以缓解业主的储物压力。
客厅
运用深色的木色板做的家具加上皮质的沙发,让人感觉很肃然起敬,再用白色大理石来缓冲视觉效果,最后给人的感觉是干净大方。简单的电视背景墙增加了储物功能,可以合理利用空间。
卧室
该卧室是男孩房,在这个空间布局的风格与客厅餐有些许的不同,灰色主调添加黄色跳跃的颜色,让人感觉活泼又不失稳重。大面积落地柜,增加储物功能。
餐厅
与厨房相隔较远,远离厨房的油烟,拥有更舒适的就餐环境。在周围设计储物柜,增大空间利用率。酒柜就在背后,给业主在闲暇时刻品酒带来许多方便。
