温泉城 103m² 现代简约风格
2020-05-30 16:49:30 查看人数 743
案例面积:103㎡
案例户型:三居室
装修造价:约19万
案例风格:现代
本方案设计现代简约。客厅只在沙发背景做点线条黑色造型,电视背景造型与餐厅造型都以收纳空间结合灯光氛围充当造型,满足家里长辈需求,同时又不显得过时,复合儿子喜好审美.
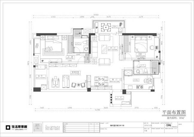
户型图
两室三厅,方正,把原来朝南的阳台包到厅里做客厅休闲区,入户赠送的入户花园做门厅玄关形式,进门换鞋以及收纳全部归到一块,避免入户满地鞋子的尴尬与不美观,餐厅与客厅都做收纳柜,简洁的柜子结合灯光造型,经典又耐看,开灯效果也不会太刺眼,夜晚灯光氛围更舒适放松,主人有健身习惯,独立划分一个健身区域,开阔又独立,健身区域靠近阳台,锻炼时候也能呼吸到新鲜空气,同时又有一定距离,避免夏日太阳大的时候暴晒不适合锻炼。
客厅
客厅区域休闲区做抬高处理,做到区域划分,可以客人休闲洽谈,也可以用来父母阅读看书晒太阳。整体色调以简洁的黑白灰,搭配主人喜欢的暗红地板,干净,简洁,又时尚,辅助灯带光源处理,在夜晚看电视时候也不会显得刺眼。
餐厅
餐厅区域设计上由于主人有阅读以及有些小收藏爱好,所以装饰造型柜上开放层架较多,以方便主人能经常看到自己喜好的读物与收藏品,身心更愉悦舒适。
