首开融侨尚东区- 101m²- 现代风格(复式)
2021-01-19 15:34:31 查看人数 963
案例面积:101㎡
案例户型:三居室
装修造价:约25万
案例风格:现代
这次设计的整体空间以高级黑为主,而这种“高级灰”不是指单纯的灰色,而是指某个色系或一组色彩经过调和后呈现出低纯度色视觉效果,使得空间质感低调柔和,优雅不张扬。软性石皮、木饰面、布艺沙发的选用,具沉稳质感,彰显家居材理性舒适的特性。
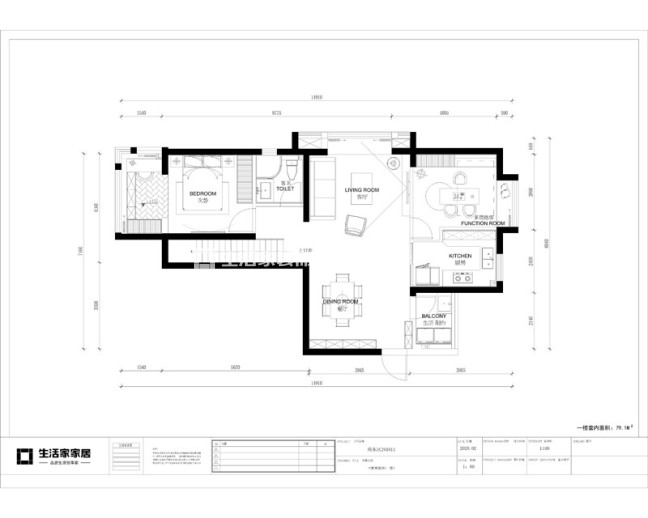
户型图
本案户型原结构是一个复式套房,套内面积101㎡。由于现在的房屋层高普遍都比以前低,还有装地暖和新风系统等,层高就会被大大的压缩,这种时候就要用到本案的无主灯设计了。这套户型虽然方正,但纵横的梁为这个设计还是增加了不少难度。
客厅
很多人担心没有主灯的家,会变得过于阴暗。其实,只要灵活使用导轨射灯或筒灯,就可以让空间的每一个角落都有着同等舒适明亮的光线。给人以明亮的视觉感。运用格栅做电视背景墙在丰富造型的同时完美的隐藏了隐形门。沙发背景上墙板的线条,简单又大方。通顶门的做法在视觉上让整个客餐厅区域显得更有高级感。
餐厅
餐边柜运用了黑白的酒柜做装饰,如同钢琴的琴键,气质优雅。侧面线条墙板与沙发背景墙呼应。由灰转白,层次感分明。
