云上鼓岭-151m² -新中式风格
2021-01-19 16:02:54 查看人数 769
案例面积:151㎡
案例户型:别墅室
装修造价:约30万
案例风格:新中式
坐拥自然美景。本案以传统中式风格为基础,采用稳重的胡桃木色为主基调,从自然、艺术、人文中吸取设计灵感,将岭南文化融入现代人居空间,保留浓厚的文化底蕴的同时,注入新的设计元素,使整个空间透露出现代东方美学的禅意与气韵。
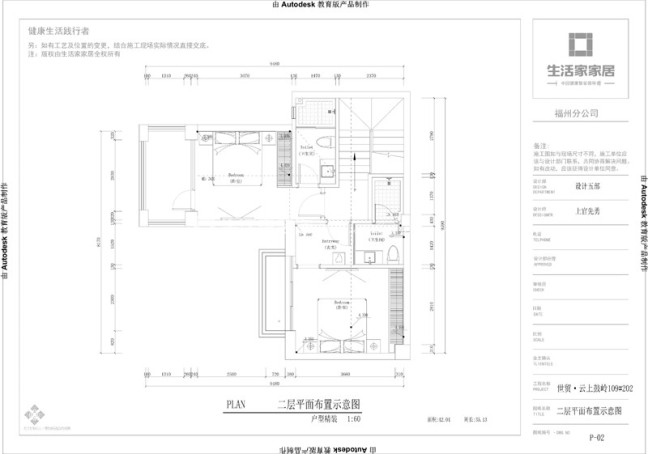
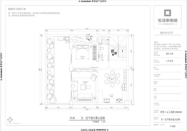
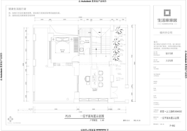
户型图
云上鼓岭境位于福建省福州市晋安区鹅鼻村,别墅整体分为地上二层、地下室一层配有会客区、茶室等休闲区,合理有序的空间层次划分,如画卷般徐徐展开。中式大宅是中国传统文化的呈现,红木家具以其丰富的内涵,高雅的格调,传承了东方生活美学的经典。负一主是主要活动的一层,厨房、餐厅、客厅,一楼茶室、二楼为居住。
客厅
中式大宅是中国传统文化的呈现,红木家具以其丰富的内涵,高雅的格调,传承了东方生活美学的经典设计师根据一层客厅原结构宽大分散的特点,采用中轴对称、借景、对景等设计手法,通过落底窗设计将庭院景致引入室内,景色与空间共鸣,自然与生活对话。
卧室
二层主卧床头背景以中国红为主色调,通过当代空间构成与传统绘画的融合,以线条裂变勾勒层次,搭配中国传统的亭台楼阁为背景的水墨山水画,更加细腻流畅的表达了中国传统文化的深厚底蕴。
餐厅
从餐厅简约的圆形天花造型,到圆形水晶吊灯,再到墙面的蓝色湖面山石艺术装置,皆在方圆之内。方中有圆,交错相容,相得益彰。方圆之美是中式美学的传承,餐厅的设计以“方、圆”的艺术形式表达,将传统文化中的空间哲学应用于此。
